Standalone villa for sale in Mountain view – Chillout park, 6th of October

  • EGP 24,000,000
For Sale
Standalone villa for sale in Mountain view – Chillout park, 6th of October
  • EGP 24,000,000

Overview

Finishing: Core & Shell
  • Separate villa
  • Property Type
  • 4
  • Bedrooms
  • 5
  • Bathrooms
  • 250
  • Garden / Roof
  • 327
  • SQM
  • Ready to move 2025
  • Delivery Date

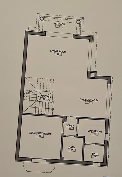
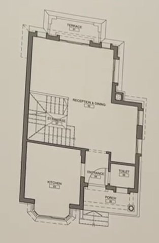
Description

District: 6th of October
Developer: Mountain view development
Project: Mountain view – Chillout park
Unit type: Standalone villa (Type AR)
BUA: 327 SQM – Land area 383 SQM
No of bedrooms: 4 + (Nanny room with bathroom)
No of Bathroom: 4
Finishing: Core & Shell
Price: 24,000,000 EGP
Delivery: Ready to move

Address

  • City 6th of October
  • Area Mountain view - Chillout park
  • Country Egypt

Details

Updated on March 27, 2025 at 12:39 pm
  • Finishing: Core & Shell
  • Price: EGP 24,000,000
  • Property Size: 327 SQM
  • Land Area: 383 SQM
  • Bedrooms: 4
  • Bathrooms: 5
  • Garden / Roof: 250
  • Delivery Date: Ready to move 2025
  • Property Type: Separate villa
  • Property Status: For Sale

Schedule a Tour

Your information

0 Review

Sort by:
Leave a Review

Leave a Review

Contact Information

View Listings

Enquire About This Property

Compare listings

Compare
Mohamed Emad
  • Mohamed Emad
error: Content is protected !!